North of Brooklyn Pizzeria / MRDK

North of Brooklyn Pizzeria / MRDK - Interior Photography, BathroomNorth of Brooklyn Pizzeria / MRDK - Interior Photography, Living Room, Wood, Table, ChairNorth of Brooklyn Pizzeria / MRDK - Interior Photography, Kitchen, LightingNorth of Brooklyn Pizzeria / MRDK - Interior Photography, Table, Lighting, ChairNorth of Brooklyn Pizzeria / MRDK - More Images+ 19

Toronto, Canada
  • Architects: MRDK
  • Area Area of this architecture project Area:  2550 ft²
  • Year Completion year of this architecture project Year:  2025
  • Manufacturers Brands with products used in this architecture project
    Manufacturers:  3M film, Agape, Arta Ceramics, CTL leather, DTile, Dyson, Hunter Douglas, In Common WIth, Jussaume, Marset Arancia, Suite 22, Wausau Tiles
More SpecsLess Specs
North of Brooklyn Pizzeria / MRDK - Interior Photography, Bathroom
Courtesy of David Dworkind

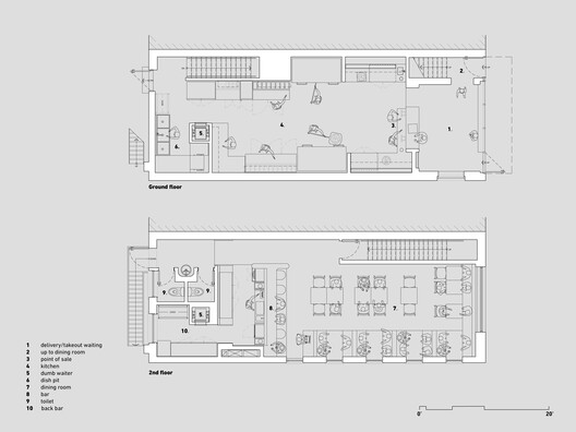
Text description provided by the architects. The 8th location of North of Brooklyn finds its home in Toronto's Etobicoke neighborhood, occupying a two-story space that seamlessly marries vibrant takeout energy with a refined bar experience. The ground floor houses the North of Brooklyn kitchen and takeout counter, while the upper level transforms into the Low Rise bar and dining room.

Content Loader

Project gallery

See allShow less
About this office
Cite: "North of Brooklyn Pizzeria / MRDK" 04 Jan 2026. ArchDaily. Accessed . <https://www.archdaily.com/1036554/north-of-brooklyn-pizzeria-mrdk> ISSN 0719-8884

You've started following your first account!

Did you know?

You'll now receive updates based on what you follow! Personalize your stream and start following your favorite authors, offices and users.