
-
Architects: Bindloss Dawes
- Year: 2025
-
Photographs:Dave Watts

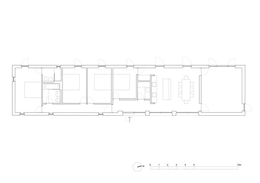
Text description provided by the architects. Bindloss Dawes Architects has completed a unique zero-carbon eco house created from the adaptive reuse of a former tractor shed on the edge of the idyllic village of Nether Compton in Somerset. The project embodies qualities central to Bindloss Dawes' approach: agricultural architecture, contemporary design, and exemplary environmental performance. The result is a home that feels both spacious and intimate.





















