
-
Architects: ater.architects
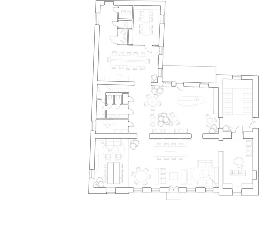
- Area: 300 m²
- Year: 2025
-
Photographs:Yevhenii Avramenko
-
Manufacturers: HAY, Ikea, Irsap, Kint, Luceplan, Magis, Nemo Lighting, Tiini

Text description provided by the architects. The designers were tasked with creating a space for people whose work revolves around generating ideas. Known for its bold campaigns and progressive culture, Banda wanted an office that would serve not simply as a workplace but as a manifesto, a physical expression of its values. The project by ater.architects reflects openness, sincerity, craftsmanship, respect for history, and a balance of refined taste with intentional imperfections and self-irony. "The clients wanted a cozy space that felt more like a bright, spacious apartment than an office," says Yulia Tkachenko, architect and co-founder of ater.architects.





























