
-
Architects: Tatsunori Kakuno/ tatta architects
- Area: 71 m²

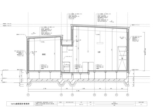
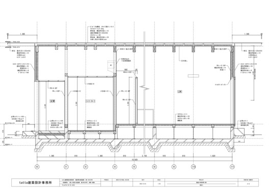
Text description provided by the architects. Set in a quiet residential area, the building was designed with an open space at the opening, with an axis running from there to the approach as the layout plan. A roof with east-west eaves emphasizes this axis. The roof itself was designed with consideration for sunlight reaching the house on the north side, with two roofs of different heights, the north roof being lower.



















