
-
Architects: Fernanda Padula Arquitetura, Juliana Risso Arquitetura
- Area: 640 m²
- Year: 2024
-
Photographs:Carolina Mossin
-
Manufacturers: Indusparquet, Domini Móveis, Firmato, Lucenera
-
Lead Architects: Fernanda Padula, Juliana Risso

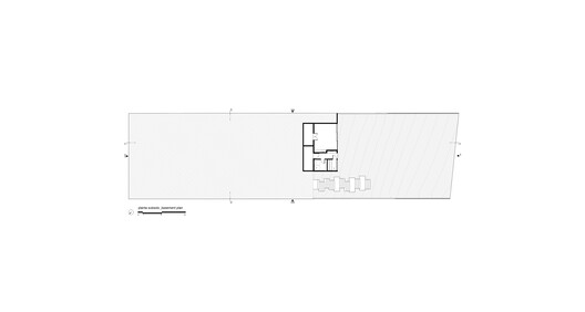
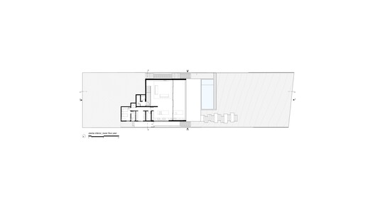
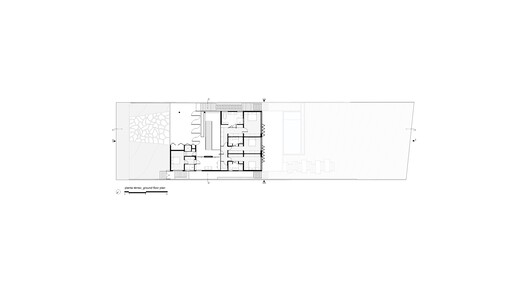
Text description provided by the architects. Set on a steep terrain with a privileged view of a lake, Cedar House embodies the desire to inhabit the landscape with lightness and depth. The design is anchored in the natural relief, allowing the topography to guide the architecture. The entrance is at the upper level, where the bedrooms and office are located.


























