Rathnelly House / Studio VAARO

Rathnelly House / Studio VAARO - Exterior Photography, Brick, DoorRathnelly House / Studio VAARO - Interior Photography, WoodRathnelly House / Studio VAARO - Interior Photography, Kitchen, Countertop, Sink, ChairRathnelly House / Studio VAARO - Interior Photography, Wood, ChairRathnelly House / Studio VAARO - More Images+ 25

  • Architects: Studio VAARO
  • Area Area of this architecture project Area:  340
  • Year Completion year of this architecture project Year:  2024
  • Photographs
    Photographs:Félix Michaud
  • Manufacturers Brands with products used in this architecture project
    Manufacturers:  Artemide, Fantini, Flos, FontanaArte, Forbes & Lomax, UD-vinduer
  • Design Team: Shengjie Qiu, Liam Hall
  • Office Lead Architects: Aleris Rodgers, Francesco Valente-Gorjup
  • General Contractor: Whitaker Construction
  • Engineering & Consulting > Structural: Kieffer Structural Engineering
  • Engineering & Consulting > Mechanical: RDZ Engineers
  • City: Toronto
  • Country: Canada
More SpecsLess Specs
Rathnelly House / Studio VAARO - Exterior Photography, Brick, Door
© Félix Michaud

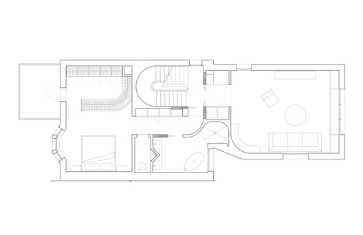
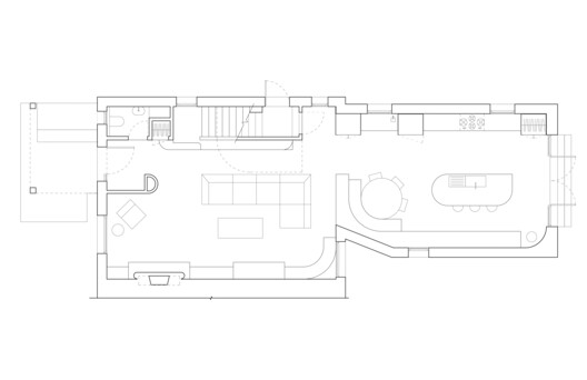
Text description provided by the architects. Studio VAARO's Rathnelly House is a comprehensive and formally expressive renovation of an Edwardian-era semi-detached house in midtown Toronto. The project not only enhances functionality and spatial fluidity but also expands the home significantly from within while respecting its existing footprint. The clients, a professional couple with a young child, sought both a pragmatic and aesthetic transformation: to increase usable floor area, raise ceiling heights, and expand storage, all within a welcoming and distinctive design mediating between openness and seclusion. Extensive structural interventions enabled a fundamental reordering of space. The result is an expansive plan that adds 140 m² (1,500 ft²), increasing the functional area of the home by almost 60%.

Content Loader

Project gallery

See allShow less
About this office
Cite: "Rathnelly House / Studio VAARO" 03 Nov 2025. ArchDaily. Accessed . <https://www.archdaily.com/1035455/rathnelly-house-studio-vaaro> ISSN 0719-8884

You've started following your first account!

Did you know?

You'll now receive updates based on what you follow! Personalize your stream and start following your favorite authors, offices and users.