
-
Architects: 2321Architects
- Area: 109 m²
- Year: 2025
-
Photographs:Hiroki Kawata
-
Lead Architect: Ryuichi Ozaki

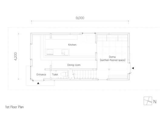
"Weave" takes its name from the ideas of interlacing and spinning. The house pursues a living environment with a tangible "grain," woven from natural materials, passive performance, and everyday culture. Rather than leaning one-sidedly on technical metrics, it layers light and wind, materiality, and the rituals of daily life with care, seeking a stance that is attentive to the environment and a form of architecture that stays close to how people actually live.




























