Doppelscheune - Barn into Residential Building / KO/OK Architektur

Doppelscheune  - Barn into Residential Building / KO/OK Architektur - Exterior PhotographyDoppelscheune  - Barn into Residential Building / KO/OK Architektur - Exterior Photography, WoodDoppelscheune  - Barn into Residential Building / KO/OK Architektur - Interior Photography, Dining room, Wood, Lighting, ChairDoppelscheune  - Barn into Residential Building / KO/OK Architektur - Image 5 of 26Doppelscheune  - Barn into Residential Building / KO/OK Architektur - More Images+ 21

  • Lead Team: Jan Keinath, Fabian Onneken
  • Design Team: KO/OK Architektur
  • Engineering & Consulting > Environmental Sustainability: Verena Klar, Independent Architect and Energy Consultant, Mähringen
  • Engineering & Consulting > Structural: Felix Mindner Tragwerksplanung, Tübingen
  • City: Tübingen
  • Country: Germany
More SpecsLess Specs
Doppelscheune  - Barn into Residential Building / KO/OK Architektur - Exterior Photography
© Sebastian Schels

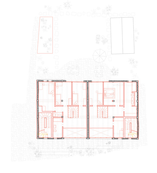
Text description provided by the architects. In the southwest of the city of Tübingen, the historic center of Derendingen is undergoing a period of transformation. Once shaped by its ribbon-like development, the area now faces a mix of renovation, repurposing, and selective densification. Within this evolving context stands a remarkable listed barn dating back to 1806, situated prominently beside the road and surrounded by the village church, an old schoolhouse, a bakehouse, and former agricultural buildings.

Content Loader

Project gallery

See allShow less
About this office
Cite: "Doppelscheune - Barn into Residential Building / KO/OK Architektur" 21 Oct 2025. ArchDaily. Accessed . <https://www.archdaily.com/1034972/doppelscheune-barn-into-residential-building-ko-ok-architektur> ISSN 0719-8884

You've started following your first account!

Did you know?

You'll now receive updates based on what you follow! Personalize your stream and start following your favorite authors, offices and users.