
-
Architects: White Cube Atelier
- Area: 900 m²
- Year: 2023
-
Photographs:Parham Taghioff
-
Lead Architects: Reza Asadzade + Shabnam Khalilpour

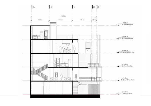
Text description provided by the architects. In a context where urban density makes it difficult to breathe and where borders are in possession and appropriation, "Doa House" attempts to attend as a quiet pause in the fast-paced flow of the city. The volumes have been moved not for show, but based on need and necessity; Every subtraction and addition is a response to the light that must pass through and a facilitator for a look that touches the horizon through the glass.




















