
-
Architects: Moser und Hager Architekten
- Area: 522 m²
- Year: 2024
-
Photographs:Gregor Graf
-
Manufacturers: BodenPro GmbH, HABAU, Metall Danner
-
Lead Architects: Michael Hager, Anna Moser

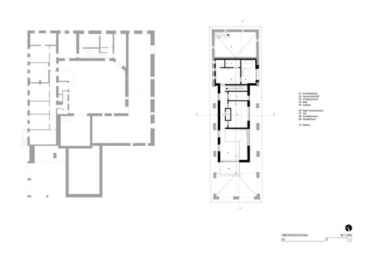
History and Task - The initial situation before the conversion was a historic farmstead in the area north of the Danube. The existing ensemble is characterized by two separate building parts: a courtyard area, which was formerly used as living space, and an inn in the house floor (now disused), and an old barn, which had initially served as a pigsty since the 1970s and later as a partially rented area.



























