

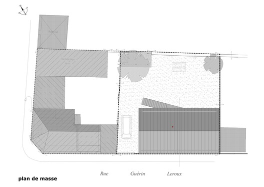
Text description provided by the architects. This dwelling is arranged along the street-facing boundary wall (preserved in its original state), which thus forms the masonry base as seen from the street.



Text description provided by the architects. This dwelling is arranged along the street-facing boundary wall (preserved in its original state), which thus forms the masonry base as seen from the street.
