
-
Architects: Soeda and associates Architects
- Area: 405 m²
- Year: 2024
-
Photographs:Takumi Ota
-
Lead Architects: Takayuki Soeda

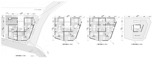
Text description provided by the architects. The road that borders the south side of the site is a culvert that was once the old Kanda River, which meandered through this area. This natural river was modernized for flood control and was slightly rerouted to become a straight, artificial river running north to south. Meanwhile, the original river was landfilled and turned into a narrow street, and the surrounding area was developed into residential land. With its series of fragmented alleyways without clear visibility, the streetscape gives a physical sensation of familiarity, which sets it apart from modernized city blocks.

























