Linh Nam House / TOOB STUDIO

Linh Nam House / TOOB STUDIO - Image 2 of 28Linh Nam House / TOOB STUDIO - Interior Photography, Kitchen, BalconyLinh Nam House / TOOB STUDIO - Interior PhotographyLinh Nam House / TOOB STUDIO - Interior Photography, Courtyard, BalconyLinh Nam House / TOOB STUDIO - More Images+ 23

More SpecsLess Specs
Linh Nam House / TOOB STUDIO - Exterior Photography, Stairs, Balcony, Door, Concrete, Handrail
© Triệu Chiến

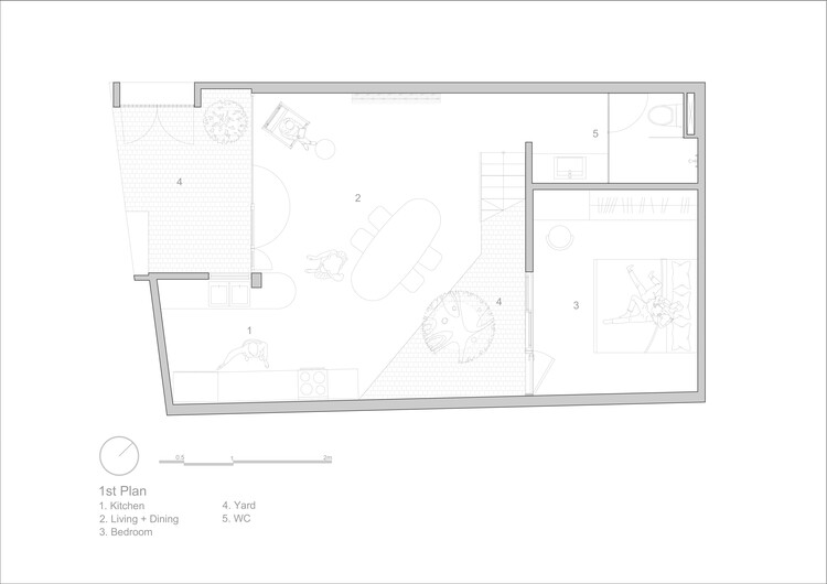
Text description provided by the architects. Nestled among dense four-story buildings, Linh Nam House emerges as an architectural enigma, accessible only through a 1.5-meter-wide alleyway. Harmoniously integrated into its surroundings, the project creates a unique "urban valley" within the evolving cityscape.

Content Loader

Project gallery

See allShow less
About this office
Cite: "Linh Nam House / TOOB STUDIO" 17 Apr 2025. ArchDaily. Accessed . <https://www.archdaily.com/1029159/linh-nam-house-toob-studio> ISSN 0719-8884

You've started following your first account!

Did you know?

You'll now receive updates based on what you follow! Personalize your stream and start following your favorite authors, offices and users.