
-
Interior Designers: Degree Design
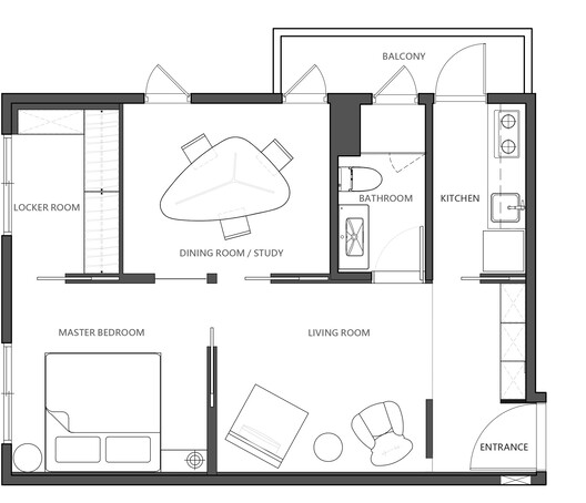
- Area: 48 m²
- Year: 2024
-
Photographs:Ivan Chuang
-
Lead Architects: TSENG, CHIH-HAO

Text description provided by the architects. Each space is a miniature city. Between the facade and the horizontal surface, between the inside and outside the wall, is the separation between the world and the heart. All flows occur here, finding a subtle balance between chasing and stopping, and the days are also in these gaps, silently changing the scenery and us. Perhaps, real life has never been about arrival, but walking with time and meeting oneself.





















