
-
Architects: I Like Design Studio
- Area: 780 m²
- Year: 2024
-
Photographs:Soopakorn Srisakul
-
Manufacturers: A.P.K. Dawkoo, Polymer Master, Solid Star, Suzuka International, The Wisdom Infinite Holding, Tree Concept

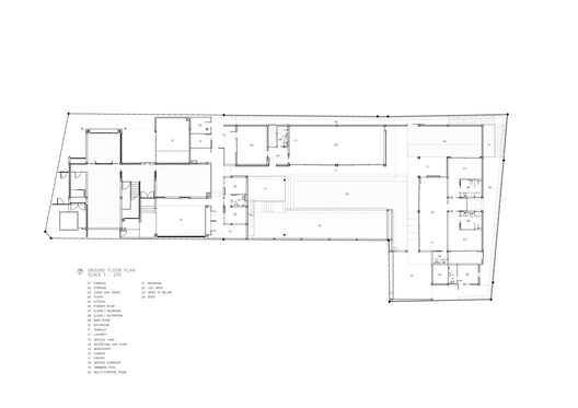
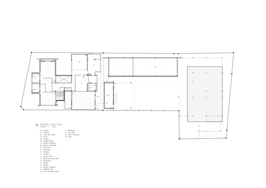
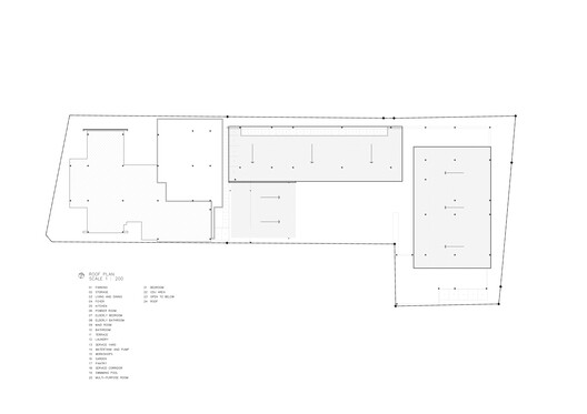
Text description provided by the architects. This house serves as an extension of the existing home where the owners currently reside. It has been thoughtfully planned to accommodate the family's future living arrangements and to provide a comfortable space for the parents to live together. The L-shaped plot for the new house is divided into three distinct zones. The deepest section is reserved as a private and tranquil residence for the elderly, allowing them to have their own space for relaxation and solitude. It features a separate vehicle entrance, independent from the main house.







































