
-
Architects: ISA - Interface Studio Architects
- Area: 37000 m²
- Year: 2023
-
Photographs:Jason Keen

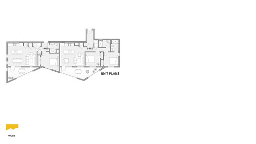
Text description provided by the architects. Mining Midtown - Detroit's Midtown neighborhood features modest mid-rise apartment buildings in much of its intact urban fabric. Set back from the street with large front yards and distinctive recessed porches on multiple levels, these existing models of mid-scale density within the Willis-Selden Local Historic District served as inspiration for the design approach at Six55 Detroit.
















