
-
Architects: Triptyque
- Area: 18188 m²
- Year: 2023
-
Photographs:Maíra Acayaba e Edu Castello, Maíra Acayaba

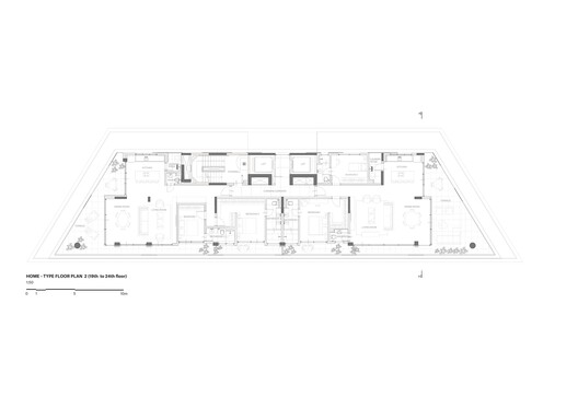
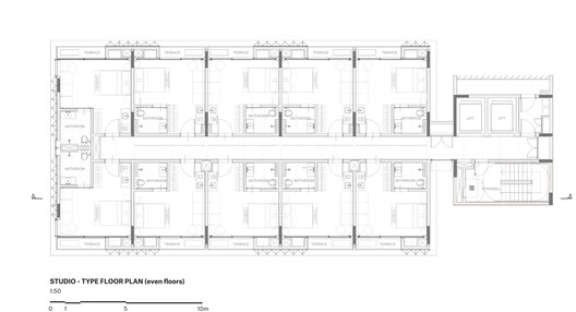
Text description provided by the architects. TRIPTYQUE Architecture presents Onze22, a residential building transcending the classic tower block as a set of overlapping, suspended slabs, interspersed with glass walls. Due to this structure framing the urban landscape in 360 degrees, Onze22 promotes total fluidity between the exterior and interior. This design invites users to relate to the city, not as something that is outside – here, the view composes the spaces as if they were part of the decoration.





























