
-
Architects: Akb Architects
- Area: 697 m²
- Year: 2021
-
Photographs:Shai Gil
-
Manufacturers: Duravit, Karcher Design, Chameleon, Halliday Baillie, Moncer, Reynaers, Watermark Designs, Wizard Screens

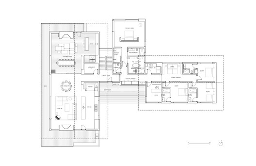
Text description provided by the architects. Akb Architects has created a multi-generational family cottage clad in rough-sawn cedar boards and cedar shakes to merge with the northern Ontario terrain of windswept trees and Pre-Cambrian bedrock. The 7,500-square-foot residence comprises three interconnected volumes that form an interior of cozy spaces and open rooms with spectacular views of a freshwater lake. The simple, volumetric shapes are distinctly contemporary and embedded with vernacular features that give the house its cabin-in-the-woods appeal, including gabled rooflines with pronounced chimney stacks and an abundance of naturally aged wood.

























