
-
Architects: Metro Arquitetos Associados
- Area: 1292 ft²
- Year: 2017
-
Photographs:Ilana Bessler

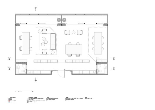
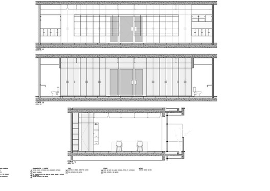
Text description provided by the architects. The client, who had recently sold his publicity company, asked us to design an office. The main question was to be a place that would make him leave the house to work in new projects because of its pleasurable and comfortable space.
















