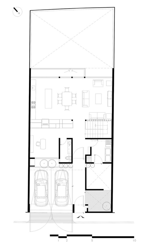
Casa Milán / BCA Taller de Diseño

Casa Milán / BCA Taller de Diseño - Image 2 of 17Casa Milán / BCA Taller de Diseño - Image 3 of 17Casa Milán / BCA Taller de Diseño - Image 4 of 17Casa Milán / BCA Taller de Diseño - Image 5 of 17Casa Milán / BCA Taller de Diseño - More Images+ 12

• Xalapa Enríquez, Jalapa, Mexico
  • Area Area of this architecture project Area:  200
  • Year Completion year of this architecture project Year:  2017
  • Photographs
    Photographs:Marcos Betanzos
  • Manufacturers Brands with products used in this architecture project
    Manufacturers:  Comex, Helvex, Interceramic, VALVO
Casa Milán / BCA Taller de Diseño - Image 6 of 17
© Marcos Betanzos
Content Loader

Project gallery

See allShow less
About this office
Cite: "Casa Milán / BCA Taller de Diseño" 09 Feb 2018. ArchDaily. Accessed . <https://www.archdaily.com/887263/casa-milan-bca-taller-de-diseno> ISSN 0719-8884

You've started following your first account!

Did you know?

You'll now receive updates based on what you follow! Personalize your stream and start following your favorite authors, offices and users.