
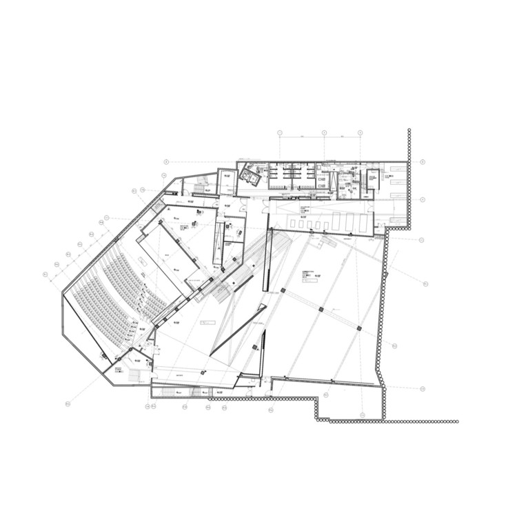
The Tel Aviv Museum of Art, located in the center of the city’s cultural complex and designed by Preston Scott Cohen has completed construction and will open to the public shortly. The program for the Tel Aviv Museum of Art Amir Building posed an extraordinary architectural challenge: to resolve the tension between the tight, idiosyncratic triangular site and the museum’s need for a series of large, neutral rectangular galleries. The solution: subtly twisting geometric surfaces (hyperbolic parabolas) that connect the disparate angles between the galleries and the context while refracting natural light into the deepest recesses of the half buried building.



























