
-
Architects: oftn studio
- Area: 495 m²
- Year: 2025
-
Photographs:Yongjoon Choi
-
Lead Architects: Jinsoo Kim, Suji Kim, Hongkyu Park, Seunggyun Baek, Ayoung Yoon, Boyeon Kim

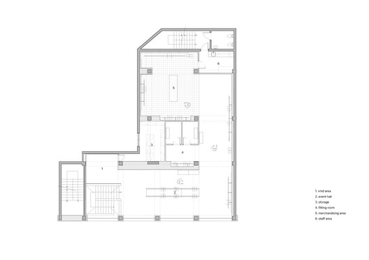
Text description provided by the architects. LMOOD is a contemporary brand that embodies modern sensibility through the foundation of minimalism and practicality. Under the slogan "Form and Function are One," the brand seeks harmony between aesthetic clarity and functional purpose. Its first flagship store, located in Seongsu-dong, Seoul, extends over two floors with a total area of 195 sqm, serving as a physical expression of the brand's philosophy and emotional tone.































