
-
Architects: the | work
- Area: 350 m²
- Year: 2025
-
Photographs:the | work

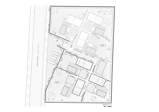
LOCATION / ENVIRONMENT – Bağdat Street and its surroundings, located in the Sapanca Lake basin; In addition to the exemplary planning decisions taken for the protection of the natural environment with detached residential areas with gardens, urban spaces, street widths, landscaping arrangements; It has become the most important main artery of the region by rapidly continuing the development of social facilities with its commercial functions, food and beverage areas, and accommodation units, which are increasing day by day.




































