
-
Architects: Atelier Ose Architecture
- Area: 137 m²
- Year: 2024
-
Photographs:Vladimir Jamet
-
Manufacturers: Technal, DuPont, Schneider Electric, Arcelor Mittal, Onduline, Velux

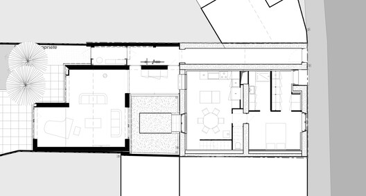
Text description provided by the architects. On a narrow, elongated plot, this former railway workers' house, fully renovated, and its garden-side extension are created around a central patio, which opens up and enhances the rear façade. The patio preserves the occupants' privacy while allowing optimal natural light into every room. The new patio draws light deep into each room and shields daily life from view.

























