
-
Architects: Arkhé
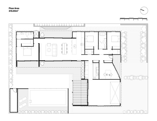
- Area: 215 m²
- Year: 2022
-
Photographs:Robert Hunter, Hunter Studio
-
Lead Architects: Diego Marangoni

Text description provided by the architects. Located in the suburban context of Palm Springs, a subdivision of Papamoa, this house combines aspects of New Zealand and Australian coastal architecture with modernist mid-century elements present in the iconic works of Richard Neutra, Alvar Aalto, and Harry Seidler, among others. This blend of architectural influences is both an intrinsic aspect of the design brief and a response to the context, exploring the subtle cues in the subdivision name and theme.




















