-
Use
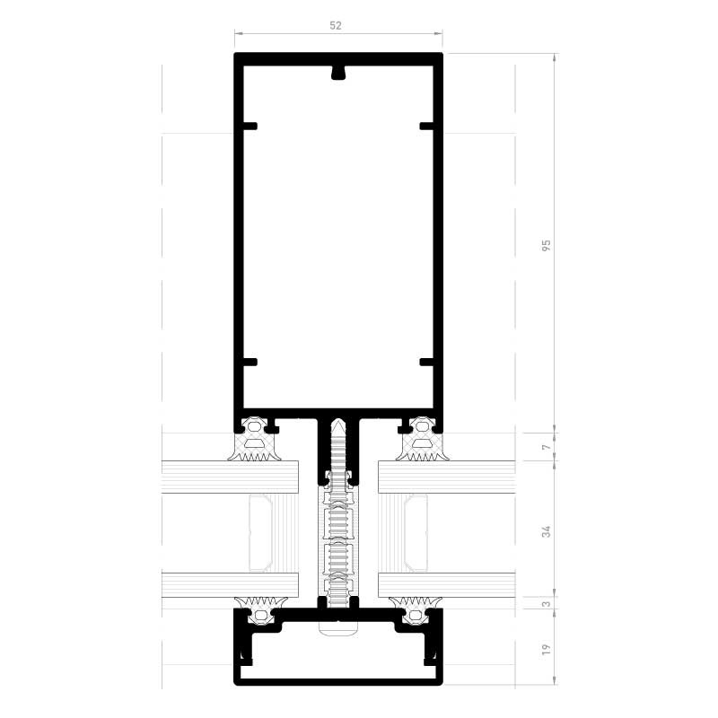
Curtain wall -
Applications
Residential, commercial, hotel, cultural, corporate, educational, restaurants -
Characteristics
Lightweight façade system consisting of 52 mm thick aluminum mullions and transoms -
Sizes
Espesor medio teórico: 2.1 mm y 3 mm
1 Product File




























