Ceiling and Wall Cladding - Linear | ASI Architectural
  1. ArchDaily
  2. Products
  3. Wood
  4. Ceiling and Wall Cladding - Linear

Ceiling and Wall Cladding - Linear | ASI Architectural

  • Available in

  • Use

    Interior walls and ceilings
  • Applications

    Residential, commercial, corporate
  • Characteristics

    Lightweight, impact resistant, rigid, various finish options, optional acoustical backer
  • Format

    Planks
  • Sizes

    Standard: 3/4″ thickness | Solid wood: <5" width, 4'-10' lengths | Veneered Planks: 3″ – 8″ modules, 8′ – 10′ lengths
  • Certification

    Fire Rating: Class A, may contribute to LEED® credits
ASI Architectural Logo

Contact manufacturer

ASI Architectural

ASI Architectural Logo

Contact manufacturer

ASI Architectural

More from ASI Architectural

Website Phone

More about this product

ASI Architectural offers two types of Linear wood systems; Tongue and Groove (T&G) and Reveal. Planks are field cut to fit irregular installations. For projects requiring acoustical absorption, ASI Architectural offers the option of an acoustical backer that can be installed above the linear system.

Standard Sizes Options
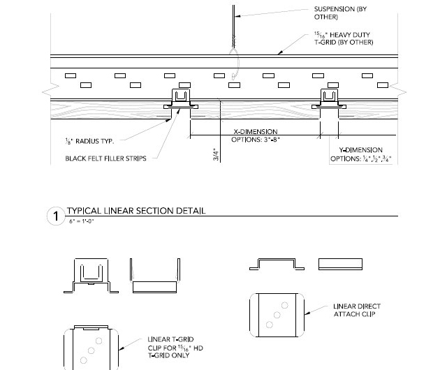
Linear T&G planks standard widths of 4″ or 5″ face Three available edge options: V-Groove, Flat V-Groove, and Butt Joint
Linear Reveal planks standard modules of 4″ or 6″ Three available reveal widths: 1/4″, 1/2″, 3/4″

Types

Linear Reveal Linear Tongue and Groove Linear Alumiline
  • Planks provide a monolithic appearance with staggered end joints
  • Custom widths and reveals are available
  • Custom stains and species available
  • Felt or ABS plastic filler strip to conceal the hardware and plenum
  • Planks can provide a Traditional look in V-groove edge
  • Planks can provide a Modern look in Butt Joint edge
  • Custom widths are available
  • Custom stains and species available
  • Planks provide a monolithic appearance with staggered end joints
  • Custom lengths available for seamless installations
  • Perfect for high humidity installations
  • Optional Powder Coat finish provides durability in high traffic areas

Options

  • Perimeter trim options up to 6" are available
  • Felt or ABS filler strips to enhance reveals between planks
  • FSC available
  • Optional features for sound control: Acoustical backer available in 1″ and 2″

Core materials:

  • Class A Fire Rated Particle Board
  • Class A Fire Rated MDF
  • Moisture-resistant MDF for exterior applications

Mounting

Attachment clips easily snap to 15/16″ HD T-bar grid. Direct-attach clips can be used to install directly onto walls and ceilings.

ASI Architectural Wood Finishes

  • Clear lacquer top coat
  • Class-A varnish
  • Stained to match
  • Touch-up finish available for field application

Product gallery

Latest Catalogs and Files

By downloading any file you agree to the Terms of Use, Privacy Policy and to the communication of your data to the brand from which you download catalogs and files.
See All
ASI Architectural Logo

Contact manufacturer

ASI Architectural

ASI Architectural Logo

Contact manufacturer

ASI Architectural

More from

ASI Architectural

Website Phone

Contact manufacturer

ASI Architectural Logo

Contact manufacturer

ASI Architectural

Related Products

View more related products »
Lunawood Thermowood in S. Pedro de Avioso Chapel

Lunawood Thermowood in S. Pedro de Avioso Chapel

Lunawood
Wall and Ceiling Panels or Planks - Audition

Wall and Ceiling Panels or Planks - Audition

ASI Architectural
Contact us