
Architects: Oppenheim Architecture + Design Location: Muttenz, Switzerland Project Year: 2012 Photographs: Borje Müller

Architects: Oppenheim Architecture + Design Location: Muttenz, Switzerland Project Year: 2012 Photographs: Borje Müller

Architects: A3 Digital Location: Franklin D. Roosevelt 3120, Buenos Aires, Autonomous City of Buenos Aires, Argentina Design Team: Santiago Luppi, Javier Ugalde, Andrea Winter Project Year: 2011 Photographs: Alejandro Peral

Architects: Pablo Anzilutti Location: Santa Fe, Santa Fe Province, Argentina Project Year: 2012 Photographs: Federico Cairoli

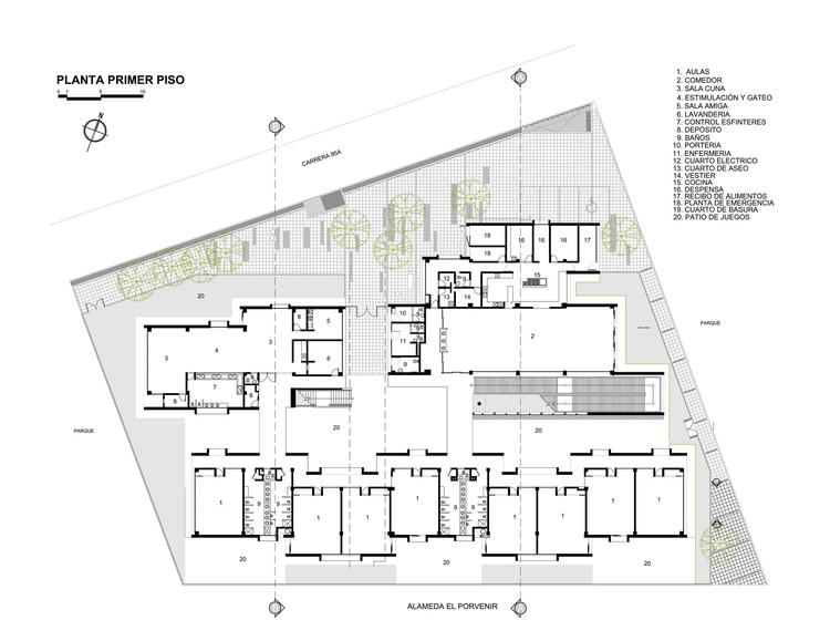
Architects: Demos Arquitectos Location: Patio Bonito, Bogotá, Bogota, Colombia Project Year: 2011 Photographs: Courtesy of Demos Arquitectos

Architects: Make Architects Location: Weihai, Shandong, China Project Year: 2012 Photographs: Shu He

Architects: Framework Architects, Studio Prototype Location: Gabriël Metsustraat, Amsterdam, The Netherlands Design Team: Maarten ter Stege, Jeroen Spee, Jeroen Steenvoorden, Thomas Geerlings Project Year: 2011 Project Area: 250.0 sqm Photographs: Jeroen Musch