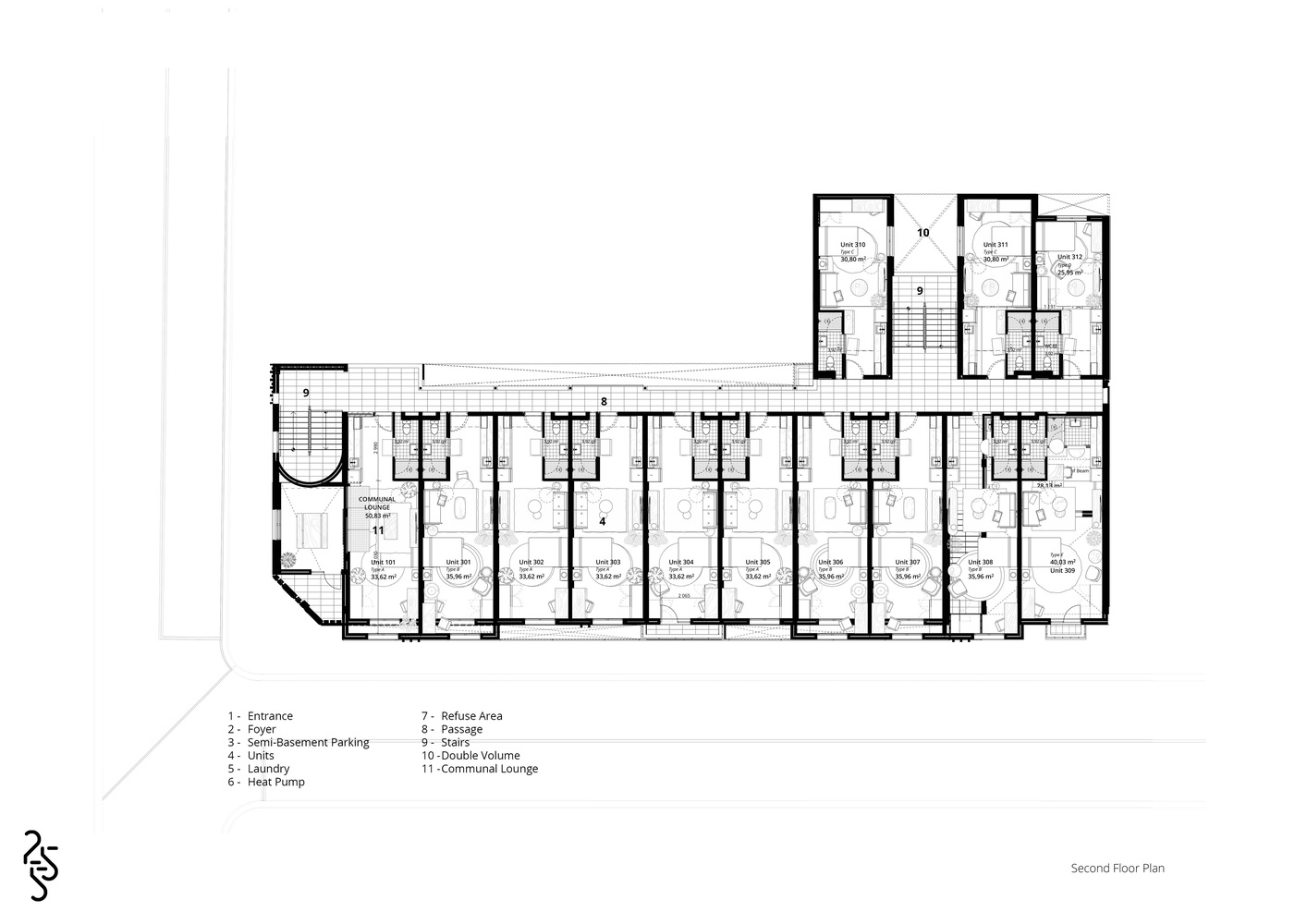
9 on Nares Apartment Building / Two Five Five Architects
Zoom image
|
View original size
Share
Share
Share this image
Facebook
Twitter
Mail
Pinterest
Or
Copy URL
✕
✕