
- Area: 21000 m²
- Year: 2019
-
Photographs:Jianghe Zeng
-
Lead Architects: Xin Nie,Haitao Chen

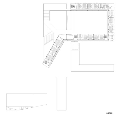
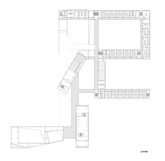
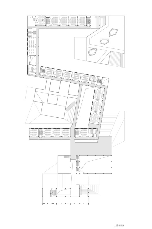
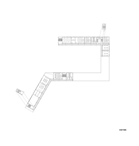
Text description provided by the architects. Hefei Vanke wants to create a comprehensive community of “School Community and Park Life” in Beicheng New District, this project is one of the most important parts. Primary and secondary schools play a role in linking all the plots in the core of this nearly 4 million-scale residential area. We are trying to create more interactive places between schools and communities to break the definition of traditional boundaries.





















































