-
Architects
-
Location
Edogawa, Japan -
Category
-
Architect in Charge
akeshi Komada,Yuka Komada -
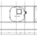
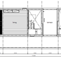
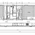
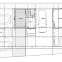
Area
176.29 m2 -
Project Year
2011 -
Photographs
Multilevel house which might be seen like small places gathered and also like a large one room. For the family that loves mountain climbing, we designed the house in which the daily life itself becomes like mountain climbing.
You run up a hill, cross a valley and stream,climb up a cliff, then you will overlook an unexpected scene below.The place where you have been can be seen in the distance.
In a fine day you spend time on the hammock in sunbeams shining through branches of trees, in a rainy day you may be in a cave alone. And family spend a starry night all together in the tent on the roof and have a good night sleep.This is the house for such a four-person family active and full of energy.
