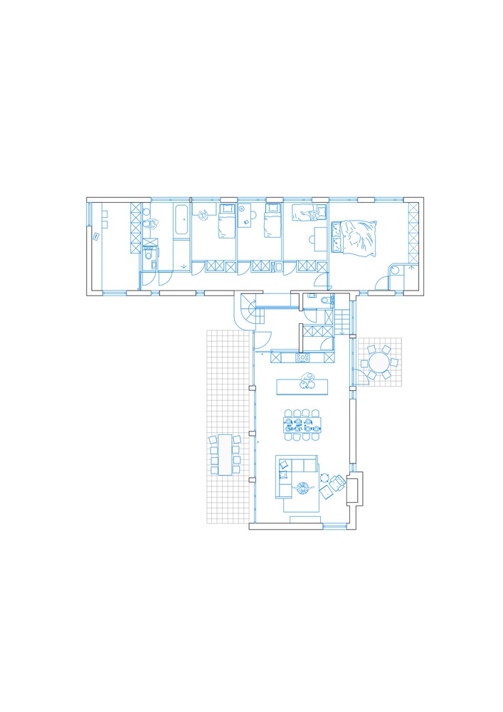
Daniël a Mid-Century Bungalow / FELT architecture & design
Zoom image
|
View original size
Share
Share
Share this image
Facebook
Twitter
Mail
Pinterest
Or
Copy URL
✕
✕