
-
Architects: Teiknistofan Tröð
- Area: 99 m²
- Year: 2024
-
Photographs:Nanne Springer
-
Manufacturers: RHEINZINK, Tylö

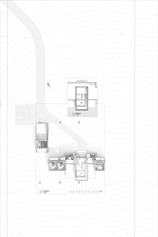
Location - Nestled in a secluded valley in southwest Iceland, the holiday home is situated on a site defined by untouched natural vegetation, including mountain birch, heather, and grass. The terrain slopes gently southward and borders a large lake, offering dramatic views across the water toward distant mountains.






























