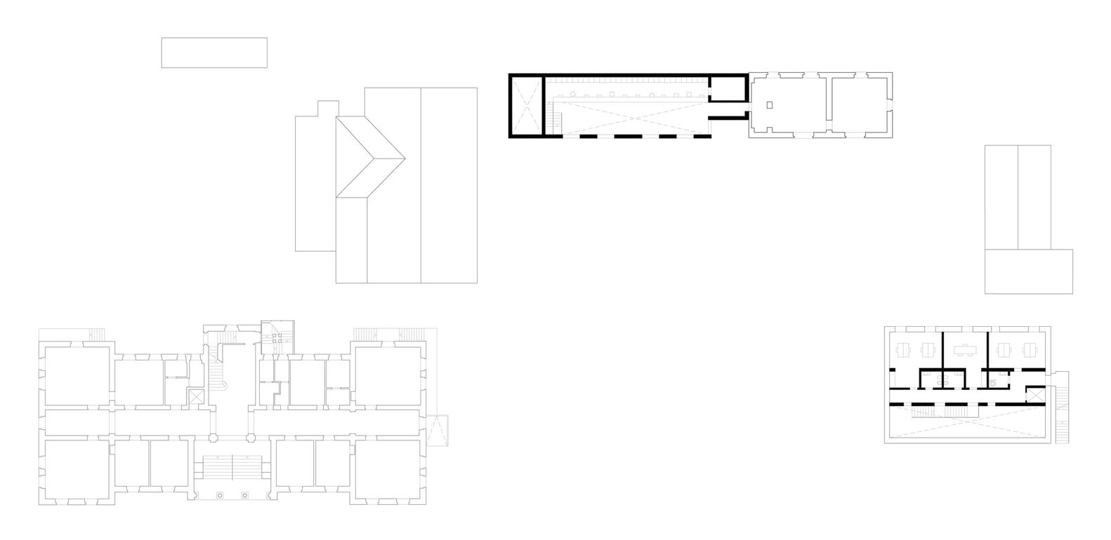
M. Sironi Academy of Fine Arts / LERUA Studio
Zoom image
|
View original size
Share
Share
Share this image
Facebook
Twitter
Mail
Pinterest
Or
Copy URL
✕
✕